Coleman3.jpg
 

Ravenna Craftsman Updated


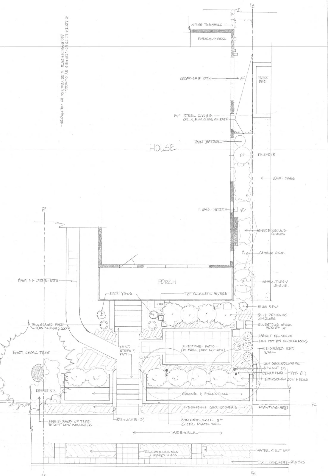
Design problem

This house had a front yard with an unusable sloped lawn that was difficult to maintain. The homeowners enjoy gardening and wanted to bring in plants for year round interest for themselves and for wildlife.

 

Design Solution

The home called for a wall with strong architecture to compliment the bold features of the craftsman house. However, I did not want the wall to overwhelm the home, so I used set back panels of mild steel on the upper wall to ‘soften’ the look, add dark, rich color and a modern feel. We widened the steps and added lighting, big dark pots and a sleek rail to complete the look. Broadleaf evergreens are used to create a year round buffer from the wall edge and reinforce the house lines in the yard. We removed the lawn and installed a bluestone patio to match the existing garden paths. The parking strip includes a landing for safe travel to the sidewalk, drought tolerant pollinator plants mixed with evergreens for dynamic color, birds and bees.

 
Coleman Master copy.jpg
Ravenna Craftsman 2
Coleman4.jpg
 
Coleman5.jpg
 
Coleman1.jpg
 
STEEL PLATE  INTEGRATED INTO CONCRETE RETAINING WALL

STEEL PLATE INTEGRATED INTO CONCRETE RETAINING WALL

 
DENSE GOUNDCOVERS FOR WEED SUPPRESSION

DENSE GOUNDCOVERS FOR WEED SUPPRESSION

 
PARKING STRIP ‘WELCOME GARDEN’

PARKING STRIP ‘WELCOME GARDEN’

(PURPLE) BLUESTONE PATIO

(PURPLE) BLUESTONE PATIO

 
SIDE YARD SHADE GROUNDCOVERS

SIDE YARD SHADE GROUNDCOVERS

Before

BEFORE:  SLOPE PREVENTS FUNCTIONAL USE OF FRONT YARD

BEFORE: SLOPE PREVENTS FUNCTIONAL USE OF FRONT YARD

BEFORE:  UNWELCOMING SIDE YARD

BEFORE: UNWELCOMING SIDE YARD

 
Back to Projects