Millard8.jpg
 

Mid-Century Modern


Design problem

Transform a highly exposed front and back yard on a busy street with little privacy from neighbors, to a private expansive garden inside, for entertaining and family gatherings. Make the back yard space feel less long and narrow. Create a modern feel, fire pit, outdoor game terrace and screening for privacy. All existing hardscapes were to remain and an additional pathway was needed on the east side of the yard.

 

Design Solutions

  1. Use the curved architecture of the stone wall in the front yard to inform the front yard lawn shape. Emphasize the wall with an evergreen hedge and groundcovers.

  2. Add tall steel planters with tall plants to screen views from the neighbor to the north. Take out an intersecting path across the back yard lawn, shorten and round off the lawn and add a specimen tree as a ‘stop’ to make the space feel wider.  

  3. Utilize an awkward triangular space by imposing a circle patio for a fire pit/ ‘Beach’ area.

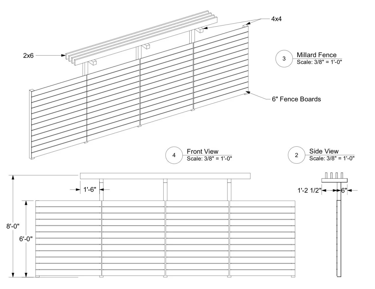
  4. Create a sunken ‘Game Terrace Room’ with architectural slab flooring, horizontal fencing and beefy arbors to define the space. Soften with plants.

  5. Create an offset path to screen views into the house from the east neighbor and visually widen the space.

  6. Use plant texture and plant architecture to reinforce the strong shapes in the hardscape and lawn.

Millard Master Plan-1:12:17.jpg
Millard6.jpg
Millard Fence-2.jpg
 
Millard3.jpg
 
Millard1.jpg
 
 
Millard2.jpg
Millard5.jpg
 
Millard2.jpg
 
Millard4.jpg
 
 
Millard10.jpg
 
 

Before

Millard before1.jpg
 
Front Yard ‘Before’

Front Yard ‘Before’

 
Game Terrace area ‘Before’

Game Terrace area ‘Before’

 
Back to Projects